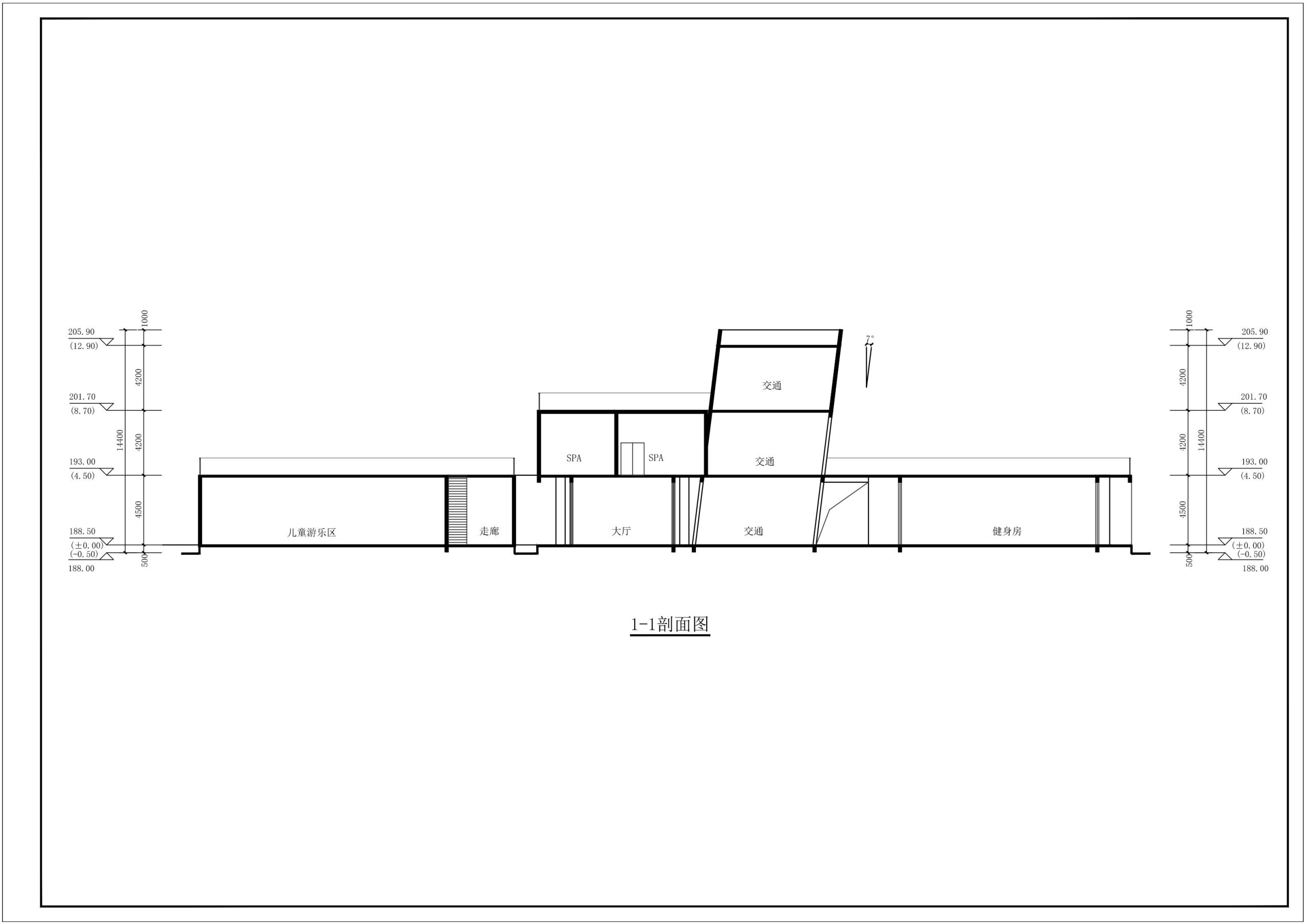
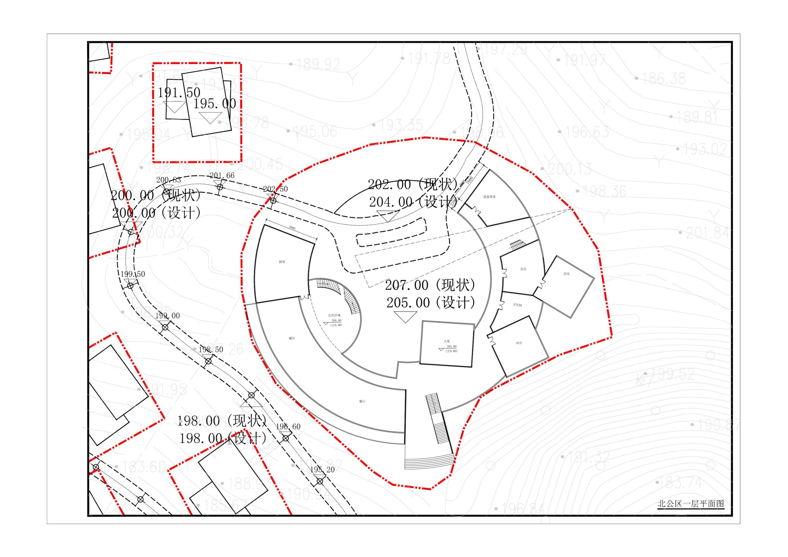
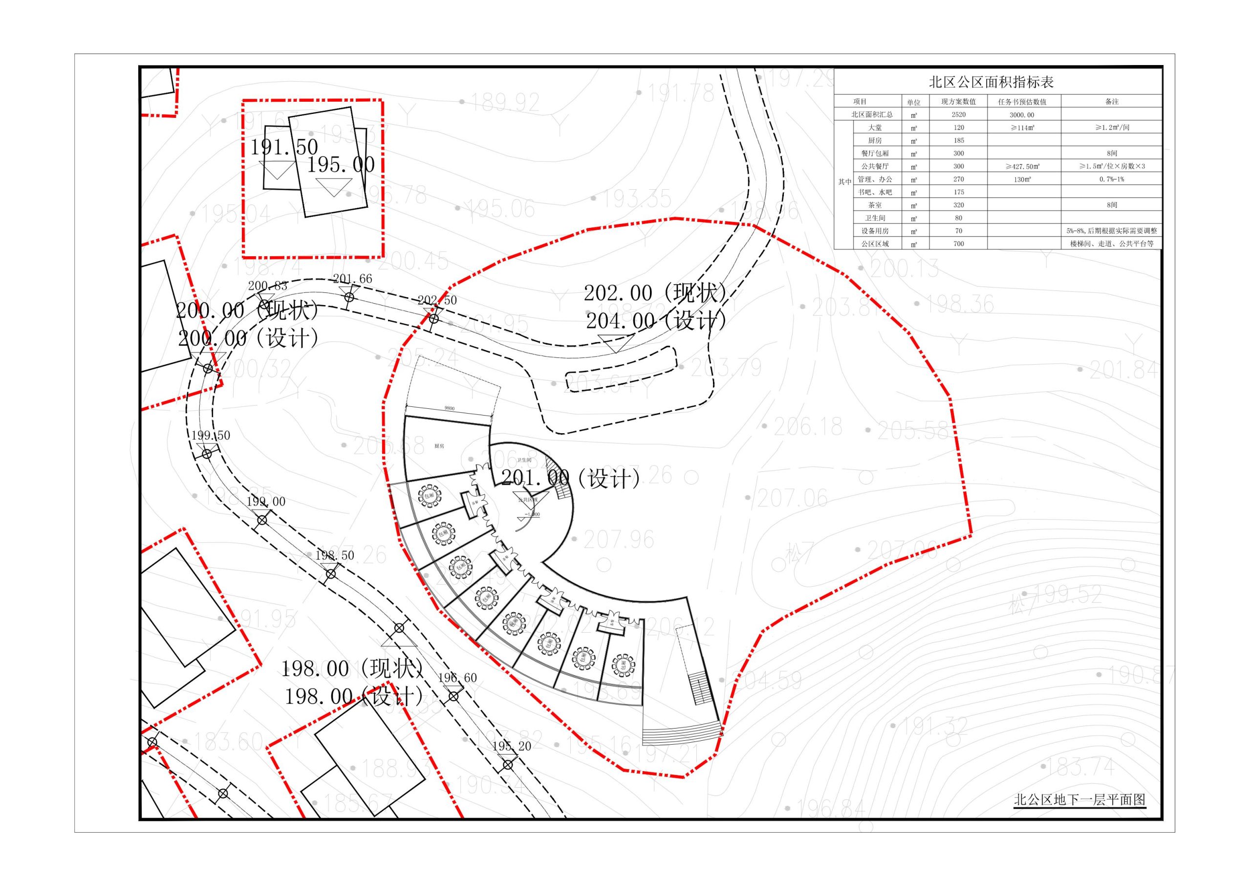
点击图片可进入PPT演示模式,手机观看建议横屏,在线观看图片有压缩,有高清需求请下载原文件
![图片[154]-英德市黄花镇T三茶庄农文旅板块方案 - 由甫网-由甫网](https://yoogh-1258427993.cos.ap-guangzhou.myqcloud.com/2025/11/20251104024432273-scaled.jpg?imageMogr2/format/webp/interlace/1/rquality/100/strip|watermark/1/image/aHR0cDovL3lvb2doLTEyNTg0Mjc5OTMuY29zLmFwLWd1YW5nemhvdS5teXFjbG91ZC5jb20vbG9nbzgucG5n/dissolve/80/dx/15/dy/15/gravity/southeast/scatype/3/spcent/15)
© 版权声明
本站所有文章,所有资源素材,版权归投稿者或原作者所有,如若本站投稿者上传内容侵犯了原作者的合法权益,可联系我们进行删除处理。
THE END


































